OYO CLIENT WORK:
[HAS HEART] Coffee Shop
[HAS HEART] was founded over a cup of coffee in 2010 by U.S. Navy veteran Michael Hyacinthe and oneyone principal Tyler Way to give veterans’ their voice through the creative outlets of art & design. Tyler has since created the entire brand identity system for the organization, as has led its annual ArtPrize exhibit efforts, the 50 States: Veterans + Artists United tour, and now its biggest project to date: the [HAS HEART] Coffee Shop.
Read the FULL story about how this veteran & creative duo have been able to connect their worlds.
LOCATED IN THE CENTER
OF DOWNTOWN GRAND RAPIDS,
THE [HAS HEART] COFFEE SHOP
IS A COMMUNITY-BUILDING
SPACE WHERE CREATIVITY, CONVERSATION, & COMPASSION COME TOGETHER OVER COFFEE.
Before each HERO[series] project, the veteran & designer partners would first get to know one another over a cup of coffee. Combined with the impact Tyler and Michael would see throughout each Fall at their annual [HAS HEART] pop-up art exhibit during ArtPrize, the concept for the [HAS HEART] Coffee Shop took root once the organization starting borrowing the unoccupied historic building on the grounds of Veterans Memorial Park, the oldest park in the city of Grand Rapids.
Tyler first put together the pitch deck in 2014, originally featuring partnerships with Starbucks and Herman Miller. But then local favorite Madcap Coffee, one of the specialty coffee roasters in the country located a mile up the hill from the park came on board as the coffee partner. The next step was to pitch to the City of Grand Rapids and the Parks Department, who oversee and manage the building that hasn’t been occupied in decades.
The city agreed, this was the perfect partnership in its ideal location.

INITIATED THE PITCH DECKS & CURATED THE MOOD BOARDS.
BUILT THE BRAND IDENTITY SYSTEM.
EXPLORED THE FLOORPLAN LAYOUT OPTIONS.
SELECTED THE MATERIALS, FINISHES, & COLORS.
RESEARCHED & CONSULTED ON EQUIPMENT & WORKFLOW.
WROTE THE STANDARD OPERATING PROCEDURES FOR HEALTH CERTIFICATIONS.
DESIGNED CUSTOM TABLES, BUILT-IN SEATING, & RETAIL DISPLAYS.
MADE ON-SITE DECISIONS WITH THE ARCHITECT & GENERAL CONTRACTOR.
CAPTURED & SHARED CONTENT THROUGHOUT THE ENTIRE RENO PROCESS.
LED THE “CAMO CAMPAIGN” PROJECT TO CREATE UPCYCLED UNIFORM CUSHIONS.
PARTNERED WITH MANUFACTURERS ON CUSTOM CUPS, MUGS, MERCH, & PRODUCTS.
HIRED & TRAINED THE BARISTAS & STAFF.
COLLABORATED WITH ARTISANS ON NEON SIGNAGE, MILLWORK, & UPHOSLTERY.
LEARNED HOW TO STEAM MILK & POUR LATTE ART!
10 YEARS FROM CONCEPT /
$1.2 MILLION RAISED /
10 YEARS FROM CONCEPT / $1.2 MILLION RAISED /
IT TOOK A VILLAGE
(AND A MILLAGE)
TO BRING THIS HISTORIC BUILDING TO LIFE
& OF COURSE, WE WERE THERE FOR EVERY STEP OF THE PROCESS.
RENOVATION PROGRESS BLOG UPDATES
PROJECT TITLE:
CAMO
CAMPAIGN
CREATIVE ASSETS CREATED:
Project pitch deck to establish partnerships
Collection bins with custom-wrap banner
Press release (Media Coverage)
Social media & website promotions
Captured photo/video content for web & social
ITEMS PRODUCED:
Quilted bench cushions
Vintage wool pillows
Barista aprons
PROJECT GOAL:
Create an opportunity for the public to participate in the coffee shop’s design elements that make them feel part of it. The goal is to make them feel connected to the shop. The [HAS HEART] Coffee Shop wants to feel warm, inviting, and a central core piece of the community.
PROJECT OVERVIEW:
Launch an open call for the community to donate camouflage uniforms to be repurposed into patchwork-style bench cushions.
The Coffee Shop building is inaccessible while under construction, so we’ll partner with Sheldon Dry Cleaners as a “collection site” for the public to drop off uniforms in a designated bin at their two “Laundry Room” locations in Grand Rapids.
Once enough uniforms have been cleaned & collected, they’ll go to Treetops Collective, a cross-cultural organization that connects with and invests in New American (refugee) women, for a “cut & sew” event with veterans and refugees working together to patchwork the uniforms together.
The roll of patchwork uniforms will be taken to a local quilter to add a padding backing and hand-patterned quilt stitch to the roll before being brought to a local upholsterer to be sewn into cushion covers.
The remaining remnants of uniforms will be utilized for barista aprons to be custom-crafted by Sidnaw Company.






























PROJECT TITLE:
CUP, MUG
& MERCH DESIGN
ITEMS PRODUCED:
Ceramic coffee mugs for in-store use & purchase
To-go hot & iced coffee cups & ice cream dishes
Custom cut & sewn hats (Made in Los Angeles)
Screen-printed apparel designs
Gift card designs
PROJECT GOAL:
Create meaningful branded products that can become memorable customer touch-points showcasing the history & mission of the organization both in-store and available to purchase. It’s important to have all items to be made in America.















PROJECT TITLE:
FURNITURE &
BUILT-IN DESIGNS
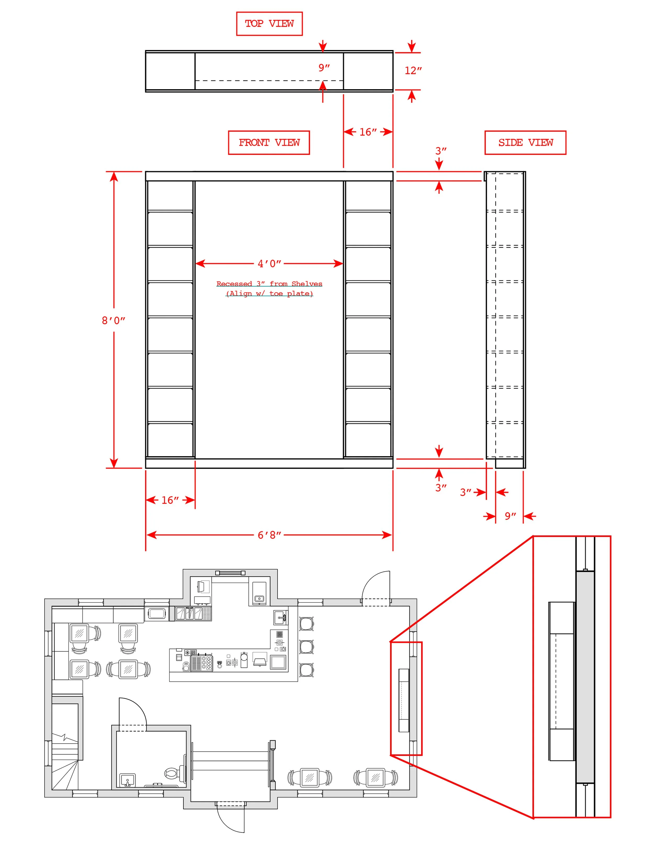
FURNITURE/FIXTURE DESIGNS:
Shadow box tables
Built-in bench seating
Built-in retail display wall
POS counter shelf
Decal retail display wall
Camo pattern mural
PROJECT GOAL:
Design a welcoming, engaging, efficient, multi-use interior space that maximizes the 800sqft floorplan. The Coffee Shop furniture should feel natural and neutral so that the HERO[series] projects and designs can be the main feature.












PROJECT TITLE:
BRAND DESIGN
& SIGNAGE
ASSETS PRODUCED:
Brand Guidelines for the Coffee Shop
Custom neon signage
In-store communications
Social media templates
PROJECT GOAL:
Expand upon the existing [HAS HEART] branding elements to include specific Coffee Shop brand assets, including in-store signage, marketing communications, social media templates, and more to further build brand awareness.










